
"...ผู้บริหาร สตง.จะมีการสั่งตั้งคณะกรรมการขึ้นมาตรวจสอบข้อเท็จจริงสาเหตุที่ทำให้อาคารที่ทำการ สตง.แห่งใหม่ พังถล่มลงมาทั้งหมดหลังเกิดเหตุแผ่นดินไหวทันที แต่เปลี่ยนใจ เพราะเห็นว่า อาจเป็นเรื่องที่ไม่เหมาะสม ที่ สตง. จะตั้งคณะกรรมการ ขึ้นมาตรวจสอบโครงการฯ ของหน่วยงานตัวเอง ประกอบกับทางรัฐบาล ได้มีคำสั่งแต่งตั้งคณะกรรมการขึ้นมาสอบสวนเป็นทางการแล้ว จึงเห็นควรให้เป็นหน้าที่ของคณะกรรมการกลาง ที่จะเข้ามาทำการตรวจสอบดีกว่า... "
กรณีอาคารที่ทำการสำนักงานตรวจเงินแผ่นดิน (สตง.) แห่งใหม่ ความสูง 30 ชั้น งบประมาณ 2,136 ล้านบาท พังถล่มครืนลงมาทั้งหมด หลังเกิดเหตุแผ่นดินไหวในประเทศเมียนมา ขนาด 8.2 ริกเตอร์ ที่ส่งผลทำให้เกิดแรงสั่นสะเทือนมายังประเทศไทย
เงื่อนปมสาเหตุที่แท้จริงที่ทำให้ อาคารที่ทำการ สตง.แห่งใหม่ดังกล่าว พังถล่มลงมา ว่า เป็นเพราะ แผ่นดินไหว หรือ ความผิดพลาดในการออกแบบสร้างอาคาร นั้น
ปัจจุบันอยู่ระหว่างการตรวจสอบจากหน่วยงานที่เกี่ยวข้อง โดยในส่วนของ น.ส.แพทองธาร ชินวัตร นายกรัฐมนตรี ได้มีการคำสั่งแต่งตั้งคณะกรรมการขึ้นมาตรวจสอบข้อเท็จจริงเป็นทางการ พร้อมรายงานผลให้รับทราบภายใน 7 วัน
ล่าสุด เมื่อวันที่ 29 มีนาคม 2568 คณะกรรมการชุดดังกล่าว ของ น.ส.แพทองธาร นายกรัฐมนตรี ได้มีการประสานงานภายในมายัง สตง. ขอเอกสารหลักฐานเกี่ยวกับการก่อสร้างอาคารดังกล่าวทั้งหมด เพื่อนำไปประกอบการตรวจสอบ ขณะที่ สตง.ได้มีการรวบรวมเอกสารทั้งหมดจำนวนหลายพันแผ่น ส่งมอบให้คณะกรรมการฯ ไปแล้ว
ทั้งนี้ ในบรรดาเอกสารหลักฐานสำคัญต่างๆ ที่สตง.ส่งมอบให้คณะกรรมการฯ ไป มีตั้งแต่เอกสารจัดทำโครงการ การขออนุมัติงบประมาณ การขออนุมัติงบประมาณเพิ่มเติม ข้อกำหนดการดำเนินงานตามมาตรฐานการก่อสร้างอาคาร แบบแปลนการก่อสร้างอาคาร รวมถึงข้อกำหนดเงื่อนไขสัญญาต่างๆ เป็นต้น
เบื้องต้น สำนักข่าวอิศรา (www.isranews.org) ก็ได้รับมอบเอกสารหลักฐานสำคัญบางส่วนเกี่ยวกับการก่อสร้างอาคารที่ทำการ สตง.แห่งใหม่ จากแหล่งข่าวที่เชื่อถือได้ เพื่อนำมาใช้ประกอบการตรวจสอบสาเหตุที่แท้จริงที่ทำให้ อาคารที่ทำการ สตง.แห่งใหม่ดังกล่าว พังถล่มลงมา ร่วมกับสาธารณชน ผู้เชี่ยวชาญที่มีความรู้ความสามารถด้านวิศวกรรม เช่นกัน
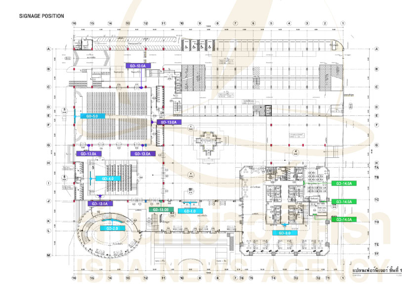
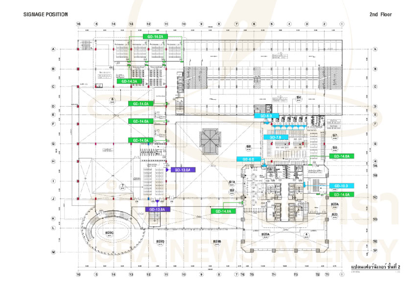
โดยในตอนแรกนี้ จะขอนำเสนอภาพแบบแปลนการก่อสร้างอาคารที่ทำการ สตง.แห่งใหม่ ชั้น 1 ถึง 28 ที่แสดงรายละเอียดการวางแผนผังที่ตั้งตำแหน่งการทำงานของบุคคลากรภายในทั้งหมด พร้อมงานงานตกแต่งภายในอาคารบางส่วน ก่อนที่จะเกิดเหตุการณ์อาคารถล่ม ตามที่ปรากฏเป็นข่าวไปแล้ว
มีรายละเอียดดังต่อไปนี้
@ รูปด้านหน้าโครงการ

@ ชั้น 1

@ ชั้น 2

@ ชั้น 3

@ ชั้น 4-5

@ ชั้น 6-7

@ ชั้น 8-9

@ ชั้น 10

@ ชั้น 11-12

@ ชั้น 13-14

@ ชั้น 15-16

@ ชั้น 17-18

@ ชั้น 19-20

@ ชั้น 21-22

@ ชั้น 23-24

@ ชั้น 25-26

@ ชั้น 27-28

@ รายละเอียดงานตกแต่งส่วนต่างๆ



จากภาพแบบแปลนการก่อสร้างอาคารที่ทำการ สตง.แห่งใหม่ ตามที่เสนอไป จะพบว่า มีการออกแบบที่ทันสมัย เอื้อประโยชน์ต่อการใช้งานในแผนกต่างๆ ของคนจำนวนนับร้อยนับพันคน ก่อนที่จะเกิดเหตุการณ์แผ่นดินไหว และทำให้อาคารพังถล่มลงมาทั้งหมด
ขณะที่แหล่งข่าวระดับสูง สตง. ให้ข้อมูลยืนยันสำนักข่าวอิศรา ว่า เดิมที่ ผู้บริหาร สตง.จะมีการสั่งตั้งคณะกรรมการขึ้นมาตรวจสอบข้อเท็จจริงสาเหตุที่ทำให้อาคารที่ทำการ สตง.แห่งใหม่ พังถล่มลงมาทั้งหมดหลังเกิดเหตุแผ่นดินไหวทันที แต่เปลี่ยนใจ เพราะเห็นว่า อาจเป็นเรื่องที่ไม่เหมาะสม ที่ สตง. จะตั้งคณะกรรมการ ขึ้นมาตรวจสอบโครงการฯ ของหน่วยงานตัวเอง ประกอบกับทางรัฐบาล ได้มีคำสั่งแต่งตั้งคณะกรรมการขึ้นมาสอบสวนเป็นทางการแล้ว จึงเห็นควรให้เป็นหน้าที่ของคณะกรรมการกลาง ที่จะเข้ามาทำการตรวจสอบดีกว่า
"หน้าที่ของ สตง. ที่ทำได้ในขณะนี้ คือ คอยให้ความร่วมมือ ในการรวบรวมข้อมูลเอกสารหลักฐานต่างๆ ไปยังคณะกรรมการสอบสวน รวมถึงประสานงานกับเอกชน ผู้รับจ้าง ในการดำเนินการแก้ไขปัญหาเรื่องความเสียหาย ทั้งในส่วนของงานก่อสร้าง รวมไปถึงผู้เสียชีวิตและบาดเจ็บในขณะนี้" แหล่งข่าวระบุ
อย่างไรก็ดี มีกระแสข่าวว่า เกี่ยวกับปัญหาสาเหตุที่ทำให้อาคารแห่งใหม่ถล่มลงมานั้น จากการรวบรวมข้อมูลทั้งหมดขณะนี้ สตง. พอจะรู้แล้วว่า สาเหตุตัวการที่แท้จริง คือ อะไรกันแน่?
และกำลังอยู่ระหว่างการตรวจสอบข้อมูลเชิงลึก ควบคู่ขนานกันไป
อนึ่งก่อนหน้านี้ นายอนุทิน ชาญวีรกูล รองนายกมนตรี และ รมว.มหาดไทย ในฐานะผู้บัญชาการป้องกันและบรรเทาสาธารณภัยแห่งชาติ ได้ลงนามคำสั่งกองบัญชาการป้องกันและบรรเทาสาธารณภัยแห่งชาติที่ 5 / 2568 เรื่องแต่งตั้งคณะกรรมการสืบสวนข้อเท็จจริงอาคาร สตง.ถล่ม ตามที่ น.ส.แพทองธาร ชินวัตร นายกรัฐมนตรี มีข้อสั่งการให้กรมโยธาธิการและผังเมืองดำเนินการตรวจสอบข้อเท็จจริงในการก่อสร้างอาคารดังกล่าว คณะกรรมการประกอบด้วย
1. ผู้ช่วยศาสตราจารย์ ธเนศ วีระศิริ นายกสภาวิศวกร ที่ปรึกษา
2. พิศุทธิ์ สุขุม วิศวกรใหญ่กรมโยธาธิการและผังเมือง ประธานกรรมการ
3. พรรณรบ เตชะมงคลาภิวัฒน์ รองอธิบดีกรมโยธาธิการและผังเมือง รองประธานกรรมการ
4. ศาสตราจารย์ เป็นหนึ่ง วานิชชัย กรรมการ
5. ผู้แทนกรมป้องกันและบรรเทาสาธารณภัย กรรมการ
6. ผู้แทนกรุงเทพมหานคร กรรมการ
7. ผู้แทนสภาวิศวกร กรรมการ
8. ผู้แทนวิศวกรรมสถานแห่งประเทศไทย ในพระบรมราชูปถัมภ์ กรรมการ
9. ผู้แทนจุฬาลงกรณ์มหาวิทยาลัย กรรมการ
10. ผู้แทนสถาบันเทคโนโลยีพระจอมเกล้าเจ้าคุณทหารลาดกระบัง กรรมการ
11. ผู้แทนมหาวิทยาลัยเกษตรศาสตร์ กรรมการ
12. ผู้แทนมหาวิทยาลัยเทคโนโลยีพระจอมเกล้าธนบุรี กรรมการ
13. ผู้แทนสำนักงานมาตรฐานผลิตภัณฑ์อุตสาหกรรม กรรมการ
14. ผู้อำนวยการสำนักวิศวกรรมโครงสร้างและงานระบบ กรรมการ
15. ผู้อำนวยการสำนักควบคุมและตรวจสอบอาคาร กรรมการ
16. ผู้อำนวยการสำนักสถาปัตยกรรม กรรมการ
17. ผู้อำนวยการกองควบคุมการก่อสร้าง กรรมการ
18. ผู้อำนวยการกองวิเคราะห์วิจัยและทดสอบวัสดุ กรรมการ
19. สุธาสินี อาทิตย์เที่ยง วิศวกรโยธาชำนาญการ กรรมการ
20. ฐิตาพรรณ ฉันทโชติ วิศวกรโยธาชำนาญการ กรรมการและเลขานุการ
21. ชัยธัช กัณฐวิจิตร วิศวกรโยธาชำนาญการ กรรมการและผู้ช่วยเลขานุการ
22. อรณิชา รองวิริยะพานิช วิศวกรโยธาชำนาญการ กรรมการและผู้ช่วยเลขานุการ
โดยมีหน้าที่และอำนาจ
1. รวบรวมพยานหลักฐานทั้งปวง เพื่อให้ได้ข้อเท็จจริงในเรื่องที่เกี่ยวข้องและข้อเท็จจริงในกรณีอาคารที่อยู่ระหว่างการดำเนินการก่อสร้างถล่ม
2. เรียกบุคคลที่เกี่ยวข้องมาชี้แจงหรือให้ข้อเท็จจริง
3. เรียกเอกสารที่เกี่ยวข้องที่สามารถใช้เป็นพยานหลักฐานจากบุคคลหรือหน่วยงานที่ครอบครองเอกสารดังกล่าว
4. ตั้งคณะทำงานเพื่อดำเนินการเรื่องใด ๆ ที่คณะกรรมการมอบหมาย
โดยให้ สรุปผลการสืบสวนพร้อมความเห็น แล้วรายงานผลให้รัฐมนตรีว่าการกระทรวงมหาดไทย ในฐานะผู้บัญชาการป้องกันและบรรเทาสาธารณภัยแห่งชาติ ให้แล้วเสร็จภายในระยะเวลา 7 วัน นับแต่วันที่ประธานกรรมการทราบคำสั่ง ทั้งนี้ ตั้งแต่บัดนี้เป็นต้นไป สั่ง ณ วันที่ 30 มี.ค. 68
อ่านประกอบ :
- เคียงข่าว :พลิกข้อมูลอาคาร 2 พันล. สตง.ถล่ม หลังเหตุแผ่นดินไหว เพิ่งตรวจรับงาน 20 กว่า%
- สตง.นัดประชุมด่วนอาคาร 2 พันล.ถล่ม เทคนิคสร้างตึกสมัยใหม่ต้นต่อปัญหาจริงหรือไม่
- รอผลสอบคณะทำงานชุดนายกฯ 5 วันก่อน! สตง.งดแถลงข่าวปมอาคาร 2 พันล.ถล่ม ทำเอกสารแจงแทน
- ข้อสังเกตเบื้องต้นการพังทลายของโครงสร้างอาคาร สตง. แห่งใหม่จากแผ่นดินไหว
- เคียงข่าว :พลิกข้อมูลอาคาร 2 พันล. สตง.ถล่ม หลังเหตุแผ่นดินไหว เพิ่งตรวจรับงาน 20 กว่า%
- ทักท้วงมาตลอด! ACT พบข้อผิดสังเกตอาคาร สตง. ถล่ม ก่อสร้างล่าช้า หยุดงานเป็นช่วงๆ
- เปิดคำชี้แจง สตง.ตึก 2 พันล.ไม่มีแก้ไขแบบโครงสร้าง พัสดุผ่านทดสอบ-ร่วม ACT ป้องกันทุจริต

Isranews Agency | สำนักข่าวอิศรา